Automatic translation by Google Translate.We cannot guarantee that it is accurate.
Skoða vefinn á Íslensku
PORTLAND
Located 50 km drive north of the capital of Iceland is the town Akranes, known for its passionate football culture, thriving fish industry, and the only cement factory of Iceland. After a period of economic crisis, in the 2008-2016, Akranes has experienced significant population growth, and forecasts suggest that this trend will continue. However, despite the increasing population, it seems that the community of Akranes is not benefiting from overall growth. The local cement factory has played a crucial role in this narrative and in the nation´s development for over fifty years from 1958 to 2008. A large part of the cement factory has been demolished, but what remains is a significant landmark for Akranes and a reminder of the era when the factory was in operation.
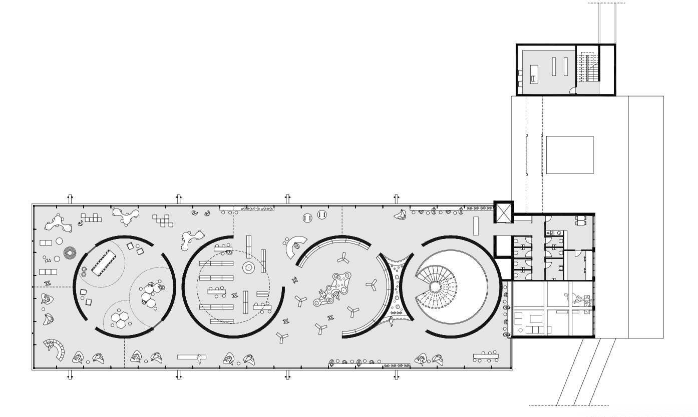
My research and mapping have revealed a clear gap: Akranes is missing a vibrant social hub where residents can connect, celebrate their shared history, and work toward a sustainable future. At the heart of this issue stands the old cement silos a once-iconic structure that delineates the skyline and still symbolizes the town´s industrial power, now underused and awaiting a new purpose.
How can repurposing the old cement silo in Akranes spark the creation of a dynamic community hub that brings people together, supports better urban planning, and honors the town. This thesis focuses on preserving the silo’s historic character while turning it into a space for cultural, social, and educational activities. The transformed structure will serve as a vibrant gathering place, encouraging social interaction and community growth. It will once again become an important part of the town’s daily life and a new destination for residents and visitors



